Poché in Architecture
In architecture, poché refers to the solid areas of a plan, such as the space within walls and structural elements, which are typically filled with black or a dark color to differentiate them from open, occupiable spaces. This technique, derived from the French word for pocket, and is used to represent everything from the structural thickness of the walls to non-habitable areas like ducts and pipes, making the drawing clearer and highlighting the hierarchy of spaces.
In Steven K. Peterson’s article Space and anti-space,1 which originally appeared in the Harvard architecture review. 1980 Spring, v.1, pp. [88]-113, Peterson breaks poché into two parts.
“… [poché is a] term used for the areas of wall that are shaped to define the different positive spaces in a composition of rooms. When the wall is literally solid it is poché; when it is hollowed out and accessible it becomes negative space, also called habitable poché.”
So architectural poché can be solid negative space, or void negative habitable space. The major habitable spaces, or rooms, are the positive space.
Examples of solid negative space represented in the plans of castles and keeps. The first example illustrates both the walls as solid poché and then the second line illustrates positive void space reversed as solid poché.

Simultaneously architectural poché can be viewed in section as well as in plan as shown in the following example.

Peterson also in Space and anti-space,2 describes a third form of space, ineffable space.
In the article Le Corbusier’s Ineffable Space and Synchronism: From Architecture as Clear Syntax to Architecture as Succession of Events3 by Marianna Charitonidou, she describes Le Corbusier’s idea of ineffable space.
“Le Corbusier drew a distinction between physicality and mentality in the architectural design process. He believed that there is a difference between expressing or manifesting the notion of space in a mental way and expressing or manifesting the notion of space in a physical way. The aforementioned distinction is related to the distinction between the real and the fictive dimension of architectural practice. Le Corbusier related the good establishment of relationships between the different components of an architectural artefact to the intensity of emotions. Le Corbusier conceived of architecture as the succession of events and believed that events take place through the creation of precise relations. He believed that an important criterion for evaluating an architectural result is the degree to which the forms are exciting, that is to say capable of provoking emotions.”4
Peterson compares Borromini’s Church of San Carlo alle Quattro Fontane and Le Corbusier’s Mill Owners’ Association Building.
“…The interior of Borromini’s “San Carlino” is divided into many differentiated spaces, each a distinct hollow shape, each a discrete entity, linked together in a rich articulation of plastic, geometric volumes.
The interior of Le Corbusier’s Mill Owners’ Association is the opposite. It involves a group of discrete differentiated objects placed in an undivided, continuous, neutral and formless void that flows through and around the building. It is designed in one, empty, invisible, formless space. But San Carlo is designed of space itself, created full, visibly formed, defined, and enclosed.
The … free plan in [modern] architecture rejected the construction of space in order to display the independence and complexity of the sculptural object. Purity of object rather than clarity of place would rule. No closed defined volumetric Space would be possible in this free-plan conception. No interruption of the a priori background void would be permitted. The universal continuum of neutral space was the essence of the new architectural paradigm. The Modern idea of space was deliberately inarticulate, conceived as ubiquitous and unrestricted, extending everywhere. Le Corbusier had an ambiguous, but accurate term for it: ineffable space.”5

Traditional poché can exist in contemporary architecture. Examples of traditional poché, or solid negative space in traditional compared to contemporary architecture.
Poché examples shown in plan:

Below – Reverse Solid Negative Space.
Poché examples shown in section:



I would argue though that Peterson’s concept related to today’s contemporary architecture does not always solely exist as just ineffable space but can also be viewed as possible solid negative space, or void negative habitable space, or a combination of any variation of the three.
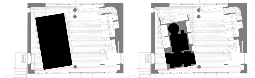
Shown here are examples of a combination of all three types of spaces: ineffable space, solid negative space, and void negative habitable space, within architecture. A project by Anthony Ames’, his Garden Pavilion, located in Atlanta, Georgia, USA 1985. In figure 3 the solid negative space is shown on the left, with the reverse on the right. In figure 4 the ineffable space is shown on the left as a solid rectangle floating within the open plan, while on the right the figural void negative habitable space is shown within this solid rectangle.


Another example can be found in Michael Dennis & Jeffery Clark’s design of the University of California at Santa Barbara, Art Museum.


Poché in Urban Design
In urban design, the solid “poche” is typically called a figure-ground diagram, which represents the built form (buildings and streets), while the void represents the open space.
In Peterson’s article Space and anti-space, he describes solid negative space, and void negative habitable space as Urban Space, and explains it as,
“The variety of different sized and shaped public piazza in Parma’s Centro Storico is a collective civic construction, deliberately bounded, man-made, and formed to assert the visibility and symbolism of Space as the essential constituent of urban form allowing the surrounding town to develop and change independently.” 6
While Ineffable Space, falls within the realm of anti-space and is described as,
“Le Corbusier’s proposed town center for Saint-Dié, France, is a place without closure. Rather, it is an open assembly of public buildings carefully placed apart and freestanding from each other in a purposeful balance of distances. It all sits in a geometric, layered form of Anti-Space meant to be perceived in motion along the riverside site. Note that the Anti-Space sense of boundless infinite flow can exist even where everything is on the same geometric orientation. A key question is how could Saint-Dié have grown? Any change to the center or additions onto the surrounding site would damage the composition.” 7

“If, as the philosophers maintain, the city is like some large house, and the house is in turn like some small city, cannot the various parts of the house—atria, loggias, dining rooms, porticoes and so on—be considered miniature buildings?”
– Leon Battista Alberti
To add to Alberti’s interpretation, the streets of cities are like corridors of a house, and the public spaces are like rooms. Therefore, the buildings, or solid would be solid negative space, while the streets, and piazzas are void negative habitable space., and within these voids ineffable space can exist. Two observe the three urban poché conditions we’ll look at the various piazza typologies.
There are four basic concepts for piazzas.
- The closed square: Space is self-contained.
- The dominated square: Space is directed.
- The nuclear square: Space formed around a center.
- Group squares: Multi-spaces combined.
- Possible combinations of the four types of squares listed above.

Shown in the illustration below, upper left, is the Figure-Ground of central Altstadt Salzburg, Austria. In the lower left illustration Residenzplatz and Kapitelplatz become one space by removing the Salzburg Cathedral. With the Salzburg Cathedral in place, you have a similar situation that Dennis and Clark created in the design of the University of California at Santa Barbara, Art Museum, shown in red, upper right illustration. The cathedral creates an urban ineffable space.

Various Examples of Urban Poché
With the publication of Collage City8 in 1978, the concept of the Urban Design Plan Game was reintroduced as a design tool. At the beginning of the book Collage City David Griffin and Hans Kollhoff created a fictitious design by collaging various plans of different buildings. They called this The City of Composite. By shading the fabric, the poché appears.

The semblance of this idea though can be found in a number of early urban situations.




This concept of collage is most apparent in Colin Rowe’s design for a portion of the Nolli Plan, in Roma Interrotta.9


Potsdam, Kirchsteigfeld Invitational Workshop
The development of the design for Potsdam, Kirchsteigfeld occurred via an invitational workshop from December 1991 to February 1992. The team of consultants comprised of city planners and landscape architects, with six architectural firms invited to participate in the workshop. They included
- Augusto Romano Burelli (Venice)
- Eyl-Weirz-Wünnle (ßerlin)
- Krüger- Schuberth-Vandreike (former East Berlin)
- Moore-Ruble-Yudell (Sant Monica, USA)
- Nielebock +Partner (Berlin)
- Krier-Koll (from Vienna).
Below are six individual schemes developed during the workshop, with the final built design by Krier-Koll. In the early 1990’s the principles for New Urbanism was being adopted by a number of designers.

Of the six designs 2,4,5 & 6 tend to be similar their approach, 3 seems to want to be both modern, with its zig-zap buildings, but also has a semblance of a grid found in the new urbanist projects mentioned above. The first project Augusto Romano Burelli tends to stand alone and is the most intriguing in my opinion. Below is a figure/ground drawing of the final built project designed by Krier & Koll, and an early design by Burelli replacing Krier & Koll’s project.

Shown below is an analysis of Burelli’s early project.

The Field as Poché in Urban Design
In Steven K. Peterson’s Urban Design Tactics, Roma Interrota10 he discusses “Fields” within Urban Elements. His explanation of these urban elements and “fields” is as follows.
Delineation of the elements deriving from space begins with the most characteristic aspect of the city, which is not the isolated space itself nor the block as object, but the combined fabric of both, extended over an entire area in an associated larger group form. When this area is recognizable and coherent it is defined as a “Field”
The “Field” is an area of the city that has distinct defining characteristics, achieved through clear edge, clear center, or distinct texture It is mosaic in form, non-linear, non-axial, repetitive, continuous and possibly disordered. It has the design qualities of fabric or surface; its edges can be shaped; its inner area inscribed with pattern; it can be joined with other fields, overlapped and interwoven. As an aggregate formal entity, it sometimes corresponds to districts or neighborhoods.11
The study of “fields” withing the urban fabric is another way to interpret poche. Peterson uses the Team Colin Rowe design for the Roma Interrota to illustrate this concept of “fields.”


Other examples of “field” poche…




Another form of “field” study is locating the outline of Roman Legion Towns inside today’s urban fabric. These kinds of analysis typically happen within the professional field of Urban Morphology.

The study of poché and urban fields within an architectural program
Poché
While teaching at Kent State University a number of exercises were employed whereby the students analyzed both the John Soane residence, and Libeskind’s Danish Jewish Museum. Enabling them to better understand the concepts of solid negative space, and void negative habitable space.




Fields
In the 3rd year undergraduate architecture program, the students are introduced to urban design in their spring semester. The first image below is of a final project, and the second image illustrates poché ‘fields,’ indicating various programmatic areas.


Examples of program for the Intro to Urban Design at the undergraduate level can be found within my portfolio site, under Undergraduate Course Work, Intro to Urban Design.
During a conversation with a colleague I was told, “The use of poché in urban design is just another term for using a figure/ground drawing.” For me the difference is, poché can be interpreted in multiple combinations, especially if you interject the idea of ‘field’ into the definition. Solid negative space, or void negative habitable space, solid negative space, and positive void space, as well as ineffable space. These can be viewed individually or in combination.
My attempt with this blog entry is to familiarize the reader to various concepts of the term poché and its use within architecture and urban design. Thank you for taking the time to read this entry. If you have questions or comments, please feel free to contact me.
- Peterson, Stephen K. “Space and anti-space,” Harvard architecture review. 1980 Spring, v.1, pp. [88]-113 ↩︎
- Ibid ↩︎
- Charitonidou, M. “Le Corbusier’s Ineffable Space and Synchronism: From Architecture as Clear Syntax to Architecture as Succession of Events”, Arts 2022, PP. 11-48. ↩︎
- Ibid ↩︎
- Peterson, Stephen K. “Space and anti-space,” Harvard architecture review. 1980 Spring, v.1, pp. [88]-113 ↩︎
- Ibid ↩︎
- Ibid ↩︎
- Rowe, C.; Koetter, F., Collage City, MIT Press, 1978 ↩︎
- The design team consisted of Peter Carl, Judith Di Maio, Steven Peterson, and Colin Rowe. The 1978 exhibition “Roma Interrotta” marked a watershed in the relationship between architecture and the city. ↩︎
- Peterson, Steven. “Urban Design Tactics. Roma Interrotta.” Architectural Design Profile 49, no. 3-4 (1979). ↩︎
- Ibid ↩︎
